Winroth arkitekter. Micasa. NCC. Kvarndörren, Rinkeby, Stockholm.  Vård och omsorgsboende i tegel med detaljering, inredning, arkitektritad, burspråk,

KVARNDÖRREN

Ett nytt vård och omsorgsboende med 90 st lägenheter uppfört åt Micasa Fastigheter längs Rinkeby Allé. Trygghet och trivsel har genomsyrat arbetet i skapandet av ett ombonat hem med en god arbetsmiljö.

Vill du veta mer, prata med Maria C

Winroth arkitekter. Micasa. NCC. Kvarndörren, Rinkeby, Stockholm.  Vård och omsorgsboende i tegel med detaljering, inredning, arkitektritad, burspråk,

Plats: Rinkeby Kategori: Nybyggnad, Vård och omsorgsboende Skede: Detaljplan, Förfrågningsunderlag, Program-, System- och Bygghandling År/Status: 2015-2023, Färdigställt Beställare: Micasa/NCC Fotografier: Nadja Endler

Winroth arkitekter. Micasa. NCC. Kvarndörren, Rinkeby, Stockholm.  Vård och omsorgsboende i tegel med detaljering, inredning, arkitektritad, burspråk,
Winroth arkitekter. Micasa. NCC. Kvarndörren, Rinkeby, Stockholm.  Vård och omsorgsboende i tegel med detaljering, inredning, arkitektritad, burspråk,

Vård och omsorgsboende i Rinkeby

Tillsammans med Micasa Fastigheter har vi tagit fram ett nytt koncept för vård och omsorgsboenden med fokus på hemlika förhållanden. Våra ledord i denna process har varit trygghet, tillhörighet, tydlighet, trivsel och teknik.

Finalist i Allmänyttans bästa nyproduktion 2023

Nominerat till Årets Bygge 2023 i kategorin samhällsfastigheter. “Ett väl genomfört bygge med hållbarhetsfokus som är hemlikt, vårdsäkert och med mycket ljus” enligt juryn.

Micasa Fastigheter i Stockholm AB Samverkansentreprenad

NCC AB

Winroth arkitekter. Micasa. NCC. Kvarndörren, Rinkeby, Stockholm.  Vård och omsorgsboende i tegel med detaljering, inredning, arkitektritad, burspråk,
Winroth arkitekter. Micasa. NCC. Kvarndörren, Rinkeby, Stockholm.  Vård och omsorgsboende i tegel med detaljering, inredning, arkitektritad, burspråk,

Mötet med staden

Husets entré vetter mot Rinkeby allé som är huvudstråket i området. I gatuhörnet finns lokaler med större fönsterpartier mot en planerad moské. Lokalerna förstärker urbaniteten för stadsdelen och ger huset och verksamheten ett öppnare möte med gatan och områdets invånare.

Winroth arkitekter. Micasa. NCC. Kvarndörren, Rinkeby, Stockholm.  Vård och omsorgsboende i tegel med detaljering, inredning, arkitektritad, burspråk,
Winroth arkitekter. Micasa. NCC. Kvarndörren, Rinkeby, Stockholm.  Vård och omsorgsboende i tegel med detaljering, inredning, arkitektritad, burspråk,
Winroth arkitekter. Micasa. NCC. Kvarndörren, Rinkeby, Stockholm.  Vård och omsorgsboende i tegel med detaljering, inredning, arkitektritad, burspråk, genomgående, rundgång, ringdans, planritning, äldreboende, seniorboende

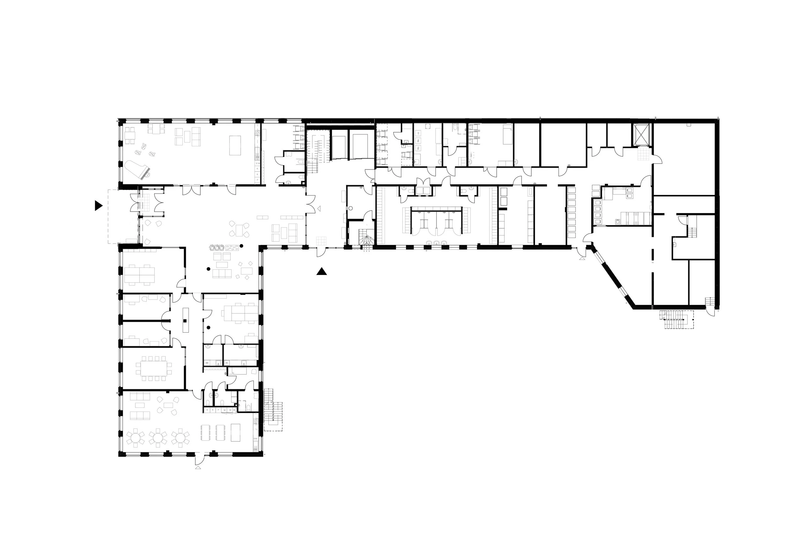
Ringdans

Hemvisterna har utformats för att ge en inspirerande miljö med gemensamma ytor med olika typer av vistelseytor som man kan röra sig mellan likt i en ringdans.

Winroth arkitekter. Micasa. NCC. Kvarndörren, Rinkeby, Stockholm.  Vård och omsorgsboende i tegel med detaljering, inredning, arkitektritad, burspråk, tegeldetaljering

Trygga material

Mot gata kläs huset i tegel, ett urbant material som ger en känsla av kvalité, erfarenhet och trygghet. Lägenheternas fönster förses med solskydd och insynsskydd. Mot gården och i terrasserna kläs huset i trä för att skapa en mjuk och privatare känsla. Burspråken får en avvikande material och färgbehandling. Här inspireras vi av områdets många kulturer genom mönsterverkan och färgsättning.

Winroth arkitekter. Micasa. NCC. Kvarndörren, Rinkeby, Stockholm.  Vård och omsorgsboende i tegel med detaljering, inredning, arkitektritad, burspråk,
Winroth arkitekter. Micasa. NCC. Kvarndörren, Rinkeby, Stockholm.  Vård och omsorgsboende i tegel med detaljering, inredning, arkitektritad, burspråk, inglasade balkonger, loftgång

Gårdsrummet

Husets insida riktar sig mot förskolans gård. Den visuella kopplingen till förskolan är viktig för de boende i huset för att se och höra barnen leka. Alla gemensamma vistelseytor i huset riktar sig mot gården.

Winroth arkitekter. Micasa. NCC. Kvarndörren, Rinkeby, Stockholm.  Vård och omsorgsboende i tegel med detaljering, inredning, arkitektritad, burspråk, modern målad bård, inredning äldreboende, omsorg i färg och kulör
Winroth arkitekter. Micasa. NCC. Kvarndörren, Rinkeby, Stockholm.  Vård och omsorgsboende i tegel med detaljering, inredning, arkitektritad, detalj, skylt, interiöra detaljer, omsorg i form och färg, mässingsdetalj, entréskylt, tidningshållare
Winroth arkitekter. Micasa. NCC. Kvarndörren, Rinkeby, Stockholm.  Vård och omsorgsboende i tegel med detaljering, inredning, arkitektritad, materialpalett, omsorg i färg och form, hemlik miljö, tapeter

Trivsel, trygghet och tydlighet

Omsorgsfulla materialval ger taktilitet samt en trivsam hem- och arbetsmiljö utan institutionskänsla. Trygghet och tydlighet för personal, boende och anhöriga skapas genom en god orienteringsbarhet utan mörka vistelseytor och korridorer.